ARCHI-TECTURE

  • kBROOKS DESIGN STUDIO

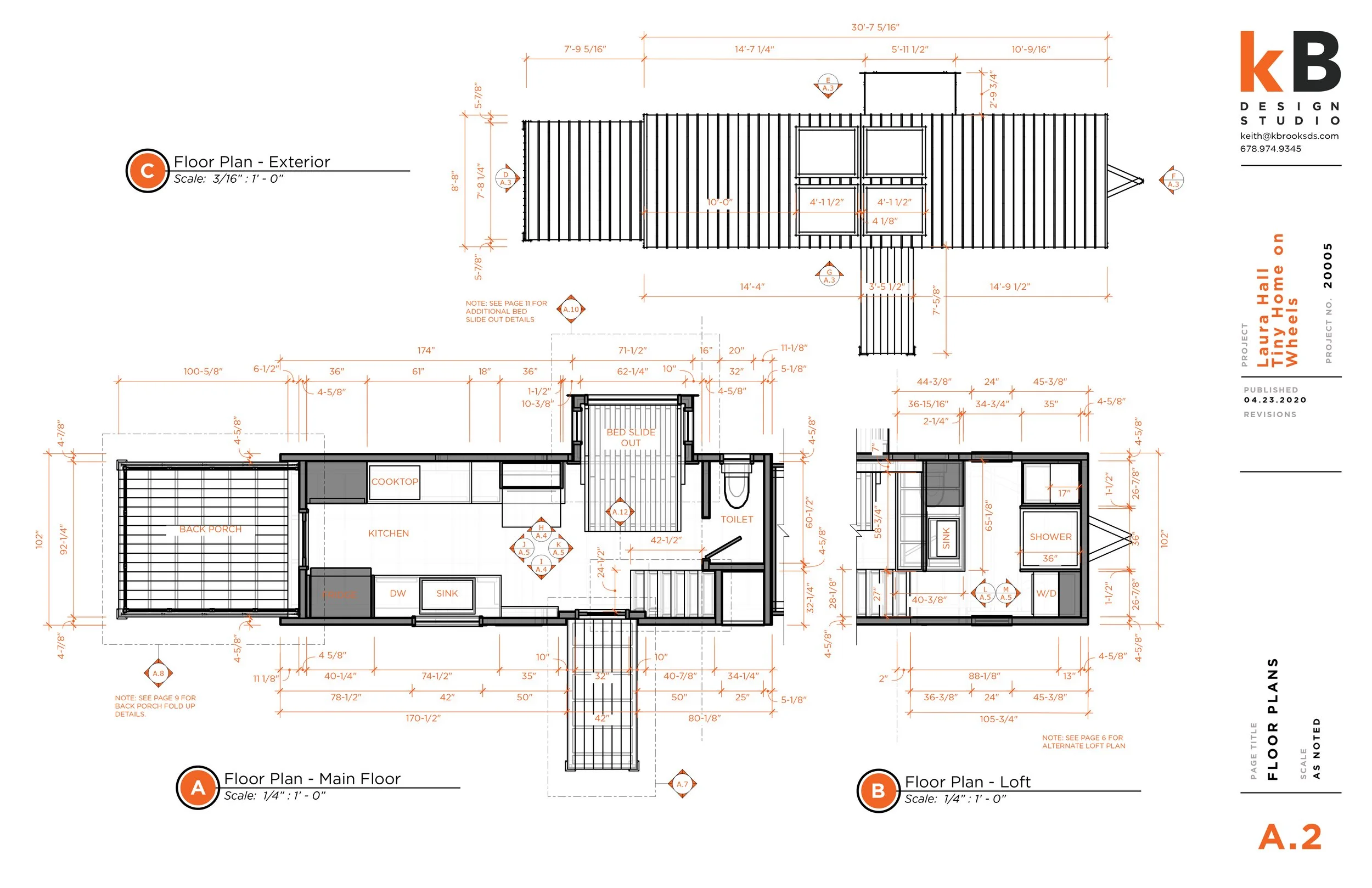
  • Tiny Home on Wheels

Previous
Previous

Cabinet Design | kBrooks Design Studio | Kitchen Island

Next
Next

Interior Design | Swisterski Design | Residential Kitchen