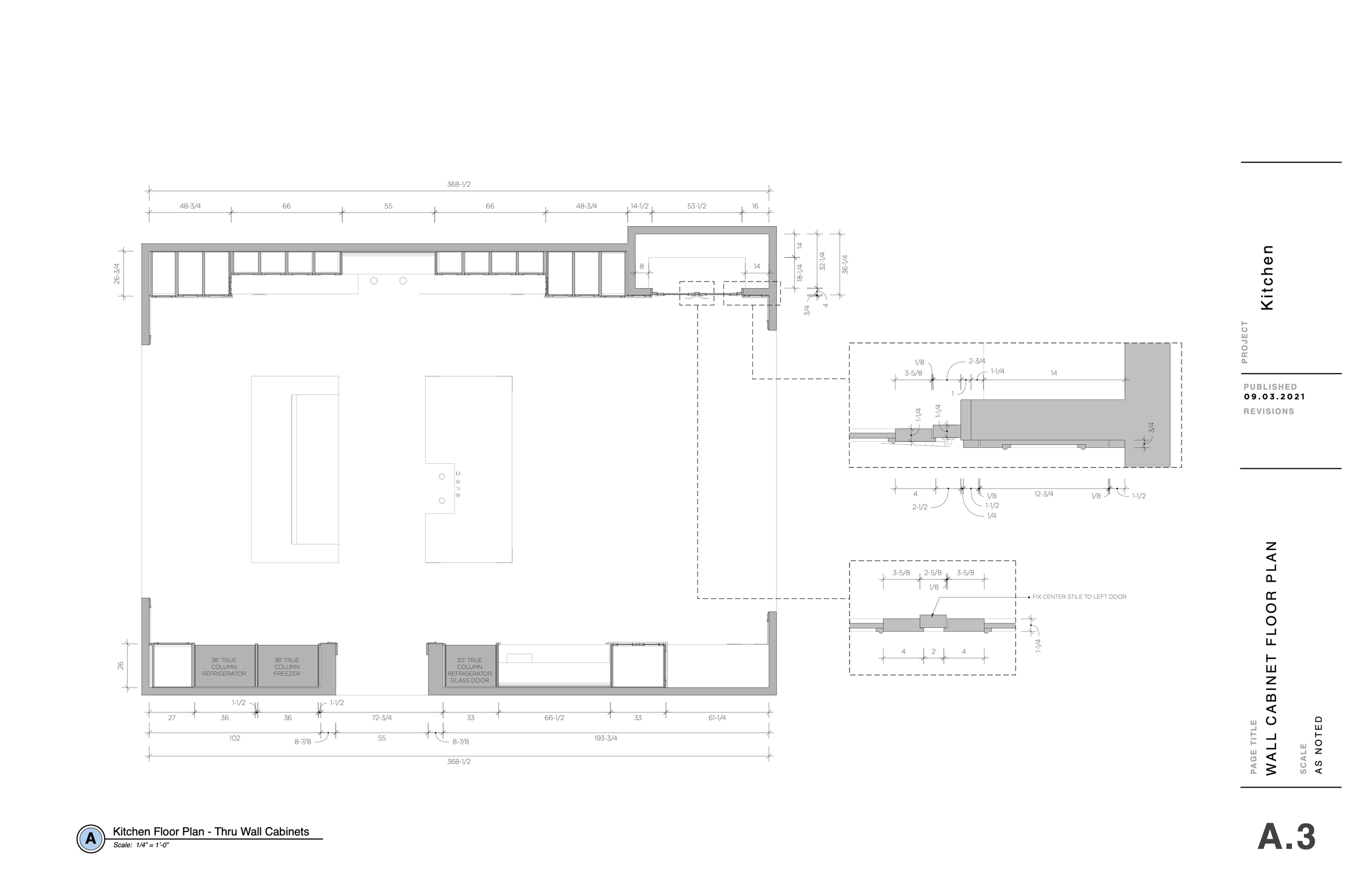
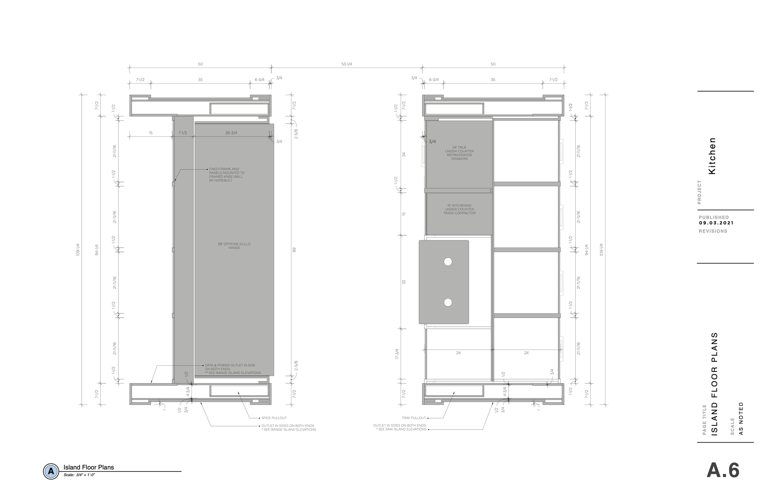
CABINET PRODUCTION DESIGN

  • kBROOKS DESIGN STUDIO & HOPEBUILT

  • New Residential Cabinet Design and Production Drawings

Previous
Previous

Interior Design | kBrooks Design Studio | Bathroom Remodel

Next
Next

Urban Architecture | Make Architecture | Rooftop Doghouse