INTERIOR DESIGN

  • kBROOKS DESIGN STUDIO

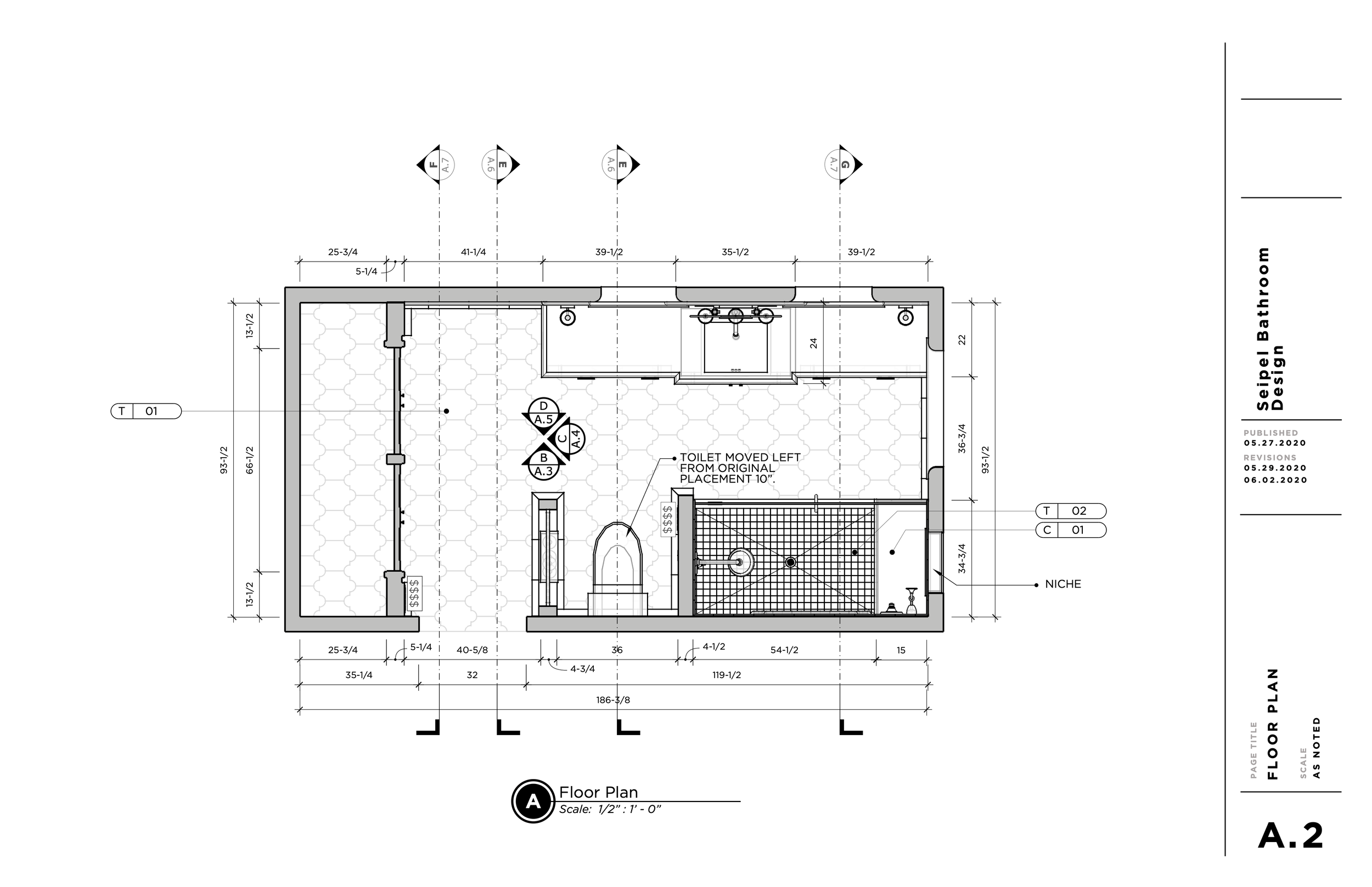
  • Bathroom Remodel

Previous
Previous

Architecture | Cornerstone Design Group | Commercial Details

Next
Next

Cabinet Design | kBrooks Design Studio | Residential Kitchen